RWT 67
MCRYAPI ALÜMİNYUM PROFİL SİSTEMLERİ
RWT 67
RWT 67 Isı Yalıtımlı Kapı ve Pencere Sistemleri
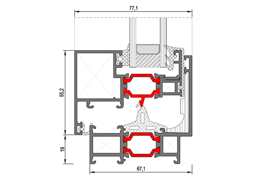
- 67,1 mm kasa derinliğine sahiptir.
- Gizli kanat açılım özelliği olan ısı yalıtımlı alüminyum kapı ve pencere sistemi
- Kanat çerçeveleri dışarıdan bakıldığında görünmez.
- Kanat açık olduğunda diğer camlar ile farkı bir profil genişliği oluşturmadığı için görüntü değişmez.
- Takviyeli ortakayıt ile yüksek rüzgar basıncına dayanıklıdır.
RWT 67
RWT 67
RWT 67
RWT 67
- RWT 67 Doğrama Sistemi, 67.1 mm kasa derinliğine sahiptir.
- Gizli kanat açılım özelliği olan ısı yalıtımlı alüminyum kapı ve pencere sistemidir.
- Kanat çerçeveleri dışarıdan bakıldığında görünmez ve kanat açık olduğunda diğer camlar ile farkı bir profil genişliği oluşturmadığı için görüntü değişmez.
- Takviyeli ortakayıt ile yüksek rüzgar basıncına dayanıklıdır.
- Normal açılım, çift eksen ve vasistas kullanım seçenekleri mevcuttur.
- 24 mm ısı bariyeri ve 24 mm maksimum cam kalınlığı bulunmaktadır.
- 72,1 mm kanat derinliği ve 1,7/1,6/2 mm et kalınlığına sahip profil seçenekleri mevcuttur.
| Kasa Derinliği | 67.1 mm |
|---|---|
| Kanat Derinliği | 72.1 mm |
| Profil Et Kalınlığı | 1,6 / 1,7 / 2 mm |
| Max Cam Kalınlığı | 24 mm |
| Isı Bariyeri | 24 mm |
| Hava Geçirgenliği (EN 12207) |
4 (600 Pa) |
| Su Sızdırmazlığı (EN 12208) |
9A (600 Pa) |
| Rüzgar Yüküne Dayanım (EN 12210) |
3 (1200 Pa) |
| Statik Burulma (TS EN 13115 ) |
4 (350 N) |
| Sistem UF Değeri (EN 10077-2) |
2.77 ~ 3.02 W/m²K |
| Sistem Ses Yalıtımı (TS EN ISO 717-1) |
Rw(C;Ctr)=35.5(-2.4;5.5) dB |
| Kullanım Seçenekleri | Kapı | Pencere |
|---|---|---|
| İçe Açılır | ||
| Vasistas | ||
| Gizli Kanat | ||
| Çift Eksen Açılım |