REFD 77
MCRYAPI ALÜMİNYUM PROFİL SİSTEMLERİ
REFD 77
REFD77 Katlanır Kapı Sistemi, tasarım, performans, esneklik ve güvenlik ihtiyaçlarını maksimum seviyede karşılama yönünde geliştirilmiş sistemidir.
- Geniş aksesuar yelpazesi ile tüm çözümlerin gerçekleştirilmesinde çok yönlülük sağlar.
- Standart, gömülü veya düşük eşik varyasyonları ile zarif tasarım, konfor ve performansı aynı sistem içerisinde sunar.
- Alt rayda çalışarak yükü kasaya aktaran rulman sistemi sayesinde 3,50 m yüksekliğe ulaşabilen boyutlar
- Kanat başına 120 kg'a kadar maksimum yük taşıma kapasitesi
- 7 Ardışık kanat yapabilme imkanı
REFD 77
REFD 77
REFD 77
REFD 77
REFD 77
REFD 77
- REFD77 Katlanır Kapı Sistemi, tasarım, performans, esneklik ve güvenlik ihtiyaçlarını maksimum seviyede karşılama yönünde geliştirilmiş sistemidir.
- Geniş aksesuar yelpazesi ile tüm çözümlerin gerçekleştirilmesinde çok yönlülük sağlar.
- Standart, gömülü veya düşük eşik varyasyonları ile zarif tasarım, konfor ve performansı aynı sistem içerisinde sunar.
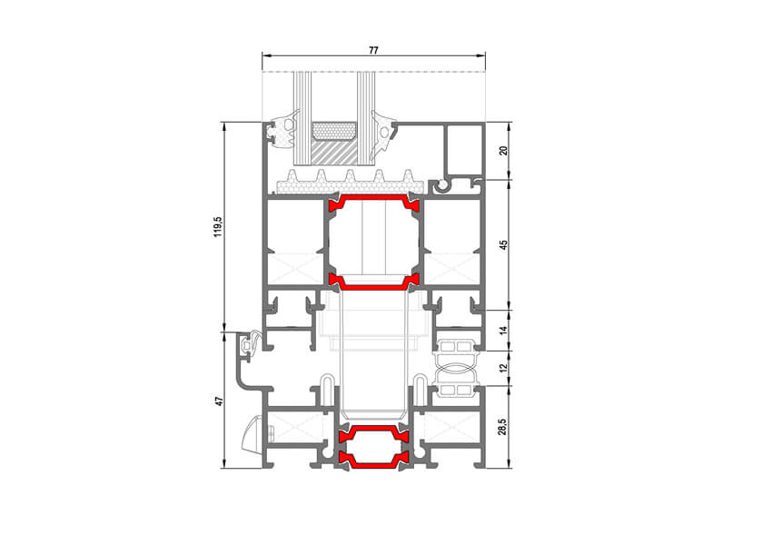
| Kasa Derinliği | 77 mm |
|---|---|
| Kanat Derinliği | 77 mm |
| Kanat Genişliği | 65 mm |
| Cam Kalınlığı | 24-50 mm (üçlü cam) |
| Bariyer Genişliği | Kasa / Frame: 24 mm
|
| Maks. Kanat Yüksekliği | 3.5 m |
| Maks. Kanat Sayısı | 7 |
| Maks. Kanat Taşıma Kapasitesi | 120 kg |
| Kanat-Kanat Birleşim Alüminyum Yüzey | 142 mm |
| Isı Yalıtım Değeri | Uw: 1.26 w/m²K |
| Hava Geçirimsizlik | 600 Pa’ya kadar |
| Su Sızdırmazlık | 600 Pa’ya kadar |
| Rüzgar Yüküne Dayanım | 1200 Pa'ya kadar |
| Güvenlik Sınıfı | RC2 |
| Kullanım Seçenekleri | Kapı |
|---|---|
| İçe Açılır | - |
| Dışa Açılır | - |
| İçe-Dışa Açılır Hemyüz Kapı | - |
| Köşe Birleşimi | 45° ve 90° |
| Tek Açılım Kapı Kilidi | Kilitli ve kilitsiz opsiyonlu |
- Alt rayda çalışarak yükü kasaya aktaran rulman sistemi sayesinde 3,50 m yüksekliğe ulaşabilen boyutlarda kanat başına 120 kg'a kadar maksimum yük ile 7 ardışık kanat yapılabilir.
- REFD77 tüm ihtiyaçları karşılayan katlanır sistem aksesuarlarıyla eksiksiz bir seridir. Maksimum konfor ve performans için arttırılmış ısı yalıtımı çözümleri sunmaktadır.
- REFD77 Katlanır Kapı Sistemi aksesuar altyapısının sunduğu avantaj ile her kanatta kilitleme imkanı sağlayarak güvenliği ön planda tutar.