HEBESCHIEBE
MCRYAPI PVC PENCERE VE KAPI SİSTEMLERİ
HEBESCHIEBE
Büyük açıklıklarda geniş ve yüksek kanatlar sayesinde geniş görüş imkanı
- Manzaranızı bölmek istemediğiniz büyük açıklıklarda geniş veyüksek kanatlar sayesinde geniş görüş imkanı sağlar.
- Belirgin şekilde daha pürüzsüz yüzeyler ve eşsiz High-Definition Finishing-formülü sayesinde, temizlenmesi çok kolaydır.
- Kullanılan aksesuarlar sayesinde büyük kanatlar emniyetli şekilde kolayca hareket ettirilebilir.
- Mükemmellikte enerji verimliliği GENEO ailesi ile (pencere, ön kapı, kaldırma-sürgü kapı) bina zarfını en iyi şekilde yalıtabilirsiniz.
HEBESCHIEBE
HEBESCHIEBE
HEBESCHIEBE
HEBESCHIEBE
HEBESCHIEBE
HEBESCHIEBE
- 10 mt genişlik , 2,80 mt yüksekliğe kadar açıklıklar sadece 4 kanatile kapatılabilir. Böylece manzaranın keyfini çıkartabilirsiniz.
- GENEO sisteminin içinde yer aldığından RAU-Fipro takviyesi sayesinde ekstra dirençlidir.
- Motorlu sistem uygulaması halinde uzaktan kumanda ile kanatları açıp kapatmanız mümkündür.
- Yüksek teknoloji ürünü RAU-FIPRO sayesinde yüksek profil sağlamlığına sahiptir.
-
Tüm hava şartlarına dayanıklıdır.
115 km/s rüzgar hızı ve şiddetli sağanak yağış bile onu etkileyemez.
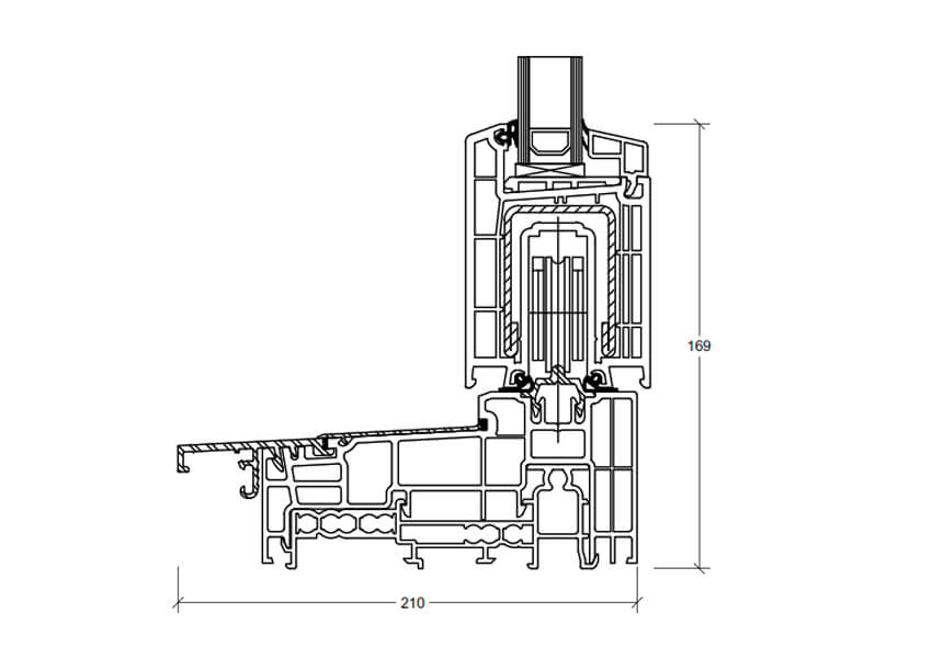
| Profil Genişliği | 70 mm / orta conta |
|---|---|
| Odacık Sayısı | 4 odacık |
| Isı Yalıtımı | Uf : Uf 1,9 W/m²K'ya kadar |
| Yüzey | Üstün kaliteli, düz ve temizlenmesi kolay |
| Ses Yalıtımı | Ses koruma sınıfı 4'e kadar |
| Hırsızlık Emniyeti | Direnç sınıfı RC2'e kadar |
| Rüzgar yüküne Direnci | DIN EN 12210’a göre B3 sınıfına kadar |
| Sağanak Yağış Geçirimsizliği | 9A (EN 12208) |
| Cam | 44 mm cam kalınlığına kadar |
| Yükseklik |
Kat yüksekliğinde pencere elemanları ve 10 m genişliğe kadar açıklık. |
- Yüksek stabilitesi size geniş yaratıcılık imkanları sağlar.
- Toplam 10 metrelik sistem genişliği olan kat yüksekli elemanlar bile evinizin mimarisi ile bütünleşebilir.
- Özel kasa profili ile gizlenmiş derz boşluğu şık bir görünüm sağlar.
- Oturma odalarınız, 4 odacıklı ve ısı köprüsü olmayan kasa ve eşik profileri sayesinde kış aylarında sürekli sıcak ve rahat kalır.
- Çok iyi ısı yalıtım değerleri elde edersiniz.